> PURE LIFE TREATMENT CENTER, MIAMI BEACH
interiors and furniture design
Casa Careyes 1
Casa Careyes 2, Mexico
Casa Oasis
MANORS
MIAMI BEACH ARTIST STUDIO LOFT
CARRILLON BEACHFRONT COTTAGE
PRIMERA CASA TOWER, FLORIDA INTERNATIONAL UNIVERSITY
GRAPELAND PARK WATER PARK FACILITIES
GRAPELAND PARK BASEBALL FIELD PRESS HOUSE
PURE LIFE TREATMENT CENTER, MIAMI BEACH
MIAMI BEACH PRIVATE APARTMENT RESIDENCE
SEAVIEW BEACH LOFT
EL PORTAL, PRIVATE RESIDENCE
SEGAL PARK FACILITIES, OPA-LOCKA
The Studio
EARTH CHURCH
VILLA CAPRI
CORAL GABLES PRIVATE RESIDENCE
BRIDGE TENDER FACILITY
FLORIDA DEPARTMENT OF TRANSPORTATION MOTOR FACILITY
MIAMI DOWNTOWN PRIVATE APARTMENT RESIDENCE
NORTH BEACH PRIVATE APARTMENT
NORTH MIAMI COMMJNITY CENTER
LAUDERDALE LAKES COMMUNITY CENTER
MIAMI BEACH FACILITIES, 21st STREET
MIAMI BEACH FACILITES, 64th STREET
SEGAL PARK ENTRANCE, OPA-LOCKA
VILAZUL SEASIDE LOFTS
ROOTS
BRICKELL PRIVATE APARTMENT RESIDENCE
MIAMI BEACH FACILITES, 46th STREET
POMPANO BEACH BLVD STUDY
SHERWOOD FOREST PARK, VILLAGE OF EL PORTAL
SHOPS OF SUNSET PLACE
SNAPPER CREEK GUARDHOUSE
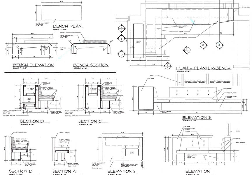
FURNITURE DESIGN
SURFSIDE PRIVATE RESIDENCE
LAUDERHILL THRUST FACILITY
SEGAL PARK COMMUNITY CENTER, OPA-LOCKA
JOSE DE DIEGO MIDDLE SCHOOL
Interiors







